Home
Sobre
Serviços
Exemplos
FAQ
Contacto
Home
Sobre
Serviços
Exemplos
FAQ
Contacto
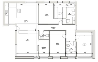
Exemplos
explore alguns dos exemplos dos nossos serviços
informações:
geral@blup.pt